Projects
26 Curl Curl Parade, Curl Curl
Details
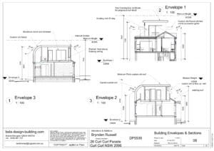
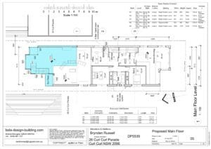
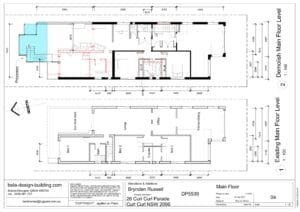
Location: 26 Curl Curl Parade, Curl Curl , North Sydney NSW
Date complete: 2011, commissioned by B. Russell
Brief: Design alterations and additions to a existing building in the Warringal planning area, increasing car parking etc, This project surrounding properties objections, where for Barrister’s from the land & environment Court














